
Kantonsschule Stein
Die neue Kantonsschule ist als durchlässiges Gebäude im Landschaftsraum konzipiert, welches durch seine schlichte Formensprache und der von aussen lesbaren inneren Struktur geprägt ist. Als eigenständiger, präzise gesetzter Bau klärt das neue Schulgebäude die ortsbauliche Situation: Es werden Übergänge der unterschiedlichen Nutzungen geschaffen, vorhandene und zukünftige Wegverbindungen verknüpft, neue Orte für Schüler und Nachbarschaft geschrieben sowie Synergien mit den bestehenden Sport- und Freizeitanlagen genutzt.
Die Schule ist nicht mehr länger nur Lern- und Lehrort, sondern auch Ort der Integration, Kommunikation, Verpflegung und Begegnung. Mit den sich permanent wandelnden Anforderungen von Schule und Bildung sind zukunftsfähige Raumkonzepte gefordert, die langfristig pädagogische und betriebliche Anforderungen erfüllen. Aspekte wie Identität und Aneignung gewinnen an Bedeutung, ermöglichen selbstorganisiertes Lernen und bieten Raum für Individualität und Zusammenarbeit, Raumgrenzen bleiben dynamisch und veränderbar. Dies fordert eine klare Struktur, die mit den Neuerungen der Schule mitgeht und neue Konzepte zulässt. Das Projekt bietet eine entsprechende Antwort in seiner Typologie, verbaut nichts - ermöglicht vieles.
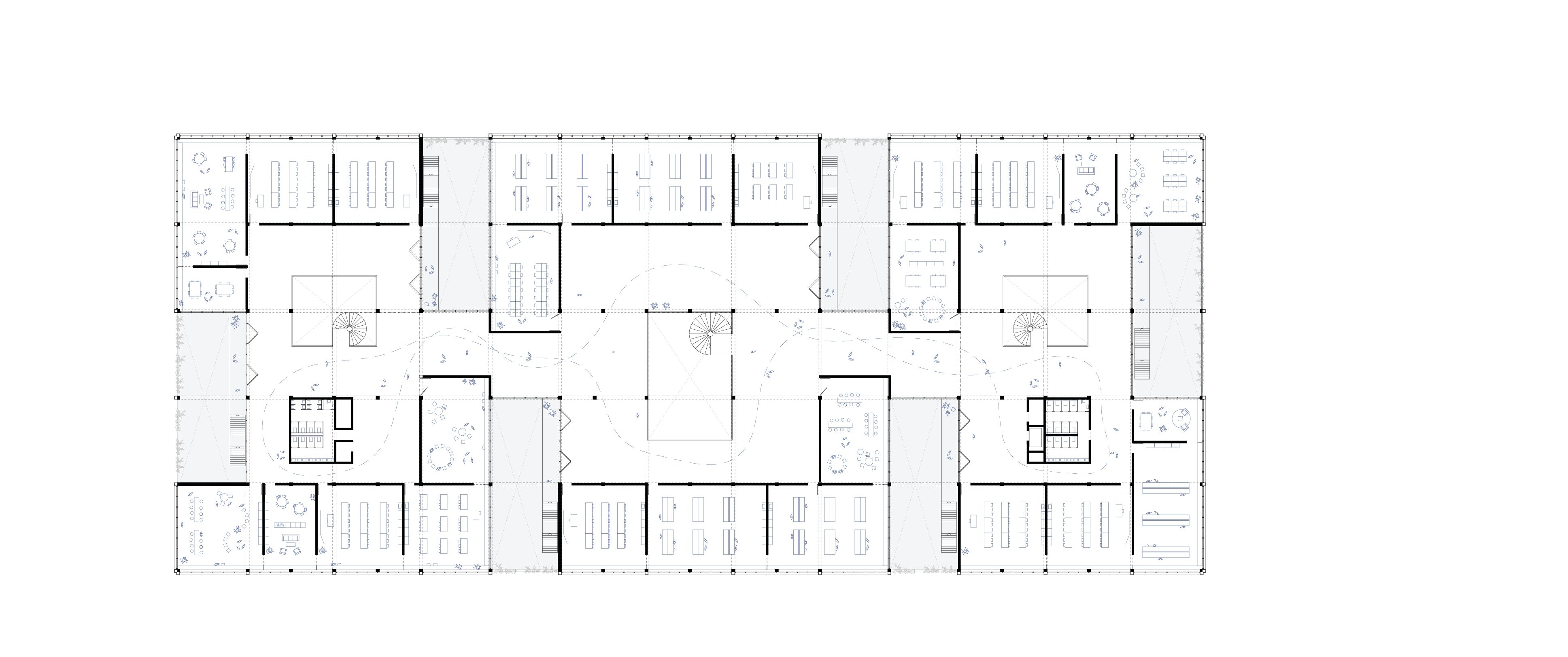
Ein Rahmenwerk aus Holz bildet den Grundraster für die drei Hauptebenen und strukturiert das Gebäude. Das durchgehende System formt das modulare Gefäss für das Raumprogramm. Das traditionelle Klassenzimmer ist wandelbar und Teil einer vielgestaltigen Lernlandschaft. Sechs Patios gliedern den Grundriss, stehen im Dialog mit der Landschaft und bilden Aufenthalts-, Pausen- sowie Lernorte. Die zentrale Mitte, als offener Erschliessungsraum und flexible Lernlandschaft, steht mit den drei gewendelten Treppenverbindungen zu den darunter- und darüberliegenden Geschossen räumlich im Dialog.
Der Ausbau folgt dem Verständnis des gesamten Lebenszyklus und beachtet mit konsequenter Systemtrennung Vorkehrungen für Unterhalt, Demontage und Wiederverwendung. Das einfache statische System gleicht einem Setzkasten für Räume und kann auf künftige Nutzungsänderungen im Gebrauch reagieren. Ganz im Sinne des zirkulären Bauens wird in einer Elementbauweise mit konstruktiver Ehrlichkeit gearbeitet, die ein hohes Mass an Flexibilität in Nutzung, Grösse und Form zulässt.
Projekt Team
Wettbewerb:
Zusammenarbeit
| Auftraggeber | Kanton Aargau |
| Architektur | GWJ Architektur |
| Fachplaner | Ort für Landschaft Synaxis Eicher Pauli Toneatti Wälchli Architekten Play-Time |
Daten und Fakten
| Verfahren | Projektwettbewerb 2023 3. Rang | 2. Preis |
| SIA 416 | GF 22‘165 m2 GV 67'130 m3 |
Es entsteht eine neue Zentralität im bisherigen Kontext wobei Synergien aus dem bestehenden Umfeld, wie beispielsweise den direkten Bezug zur Sport- und Freizeitanlage oder der weiterführende Landschaftsbezug, genutzt werden.
Ganz im Sinne des zirkulären Bauens wird in einer Elementbauweise mit konstruktiver Ehrlichkeit gearbeitet, die ein hohes Mass an Flexibilität in Nutzung, Grösse und Form zulässt.